Located on Burnham Road in the delightful village of Latchingdon, Sunmead is an exclusive collection of 25 elegant new homes.

Myriad Homes are proud to present a range of stunning three bedroom bungalows and three and four-bedroom houses coming in Autumn 2025. 

Located on Burnham Road in the delightful village of Latchingdon, Sunmead is an exclusive collection of 25 elegant new homes. The beautifully designed homes are inspired by local architectural styles and sit close to the picturesque countryside. Each home is built and finished to a high standard and will have its own private garden, dedicated parking and power provided for the electric vehicle charging points. With this superb location, these new homes offer coast, countryside and a friendly community.

Whether you’re looking for your first home, somewhere with more space for a growing family, or a single-storey home and a more relaxed lifestyle, you’ll find it at Sunmead.

Contact Paul Mason Associates Team for more information on 01621 742340 or email info@paulmasonassociates.co.uk

Availability

Sunmead offers a choice of beautifully designed three and four-bedroom homes. View the availability table to find your perfect home.

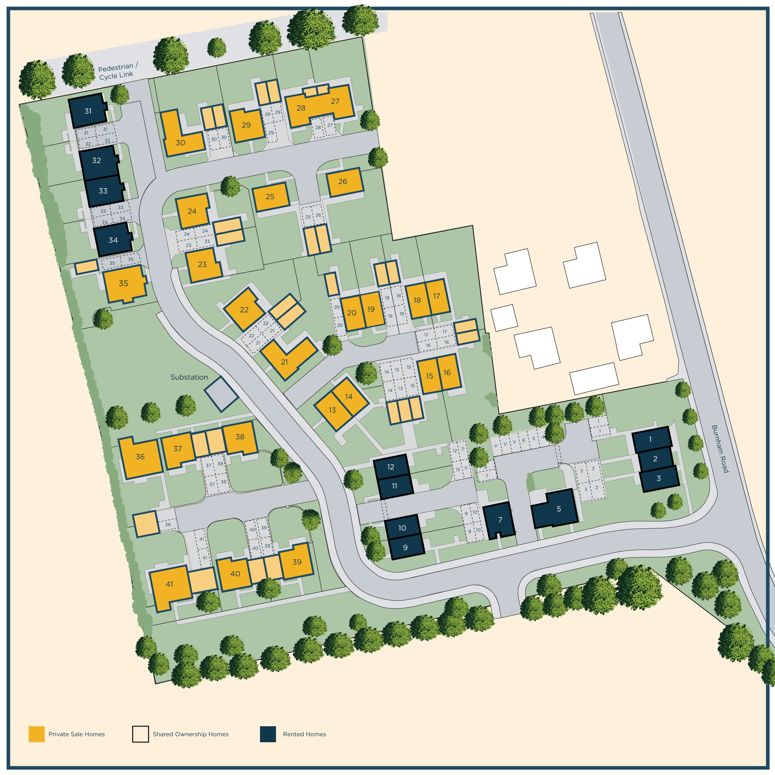
You can check out the development sitemap from the gallery section to see the full site layout.

Plot House Type Bedrooms Type Dimensions (sq ft) Price Status
13 Honeysuckle 3 Semi Detached 1,006 £410,000 Available
14 Primrose 3 Semi Detached 851 £380,000 Available
15 Primrose 3 Semi Detached 851 £380,000 Available
16 Primrose 3 Semi Detached 851 £390,000 Available
17 Primrose 3 Semi Detached 851 £390,000 Available
18 Primrose 3 Semi Detached 851 £380,000 Available
19 Primrose 3 Semi Detached 851 £380,000 Available
20 Primrose 3 Semi Detached 851 Reserved
21 Harebell 4 Detached 1,466 £565,000 Available
22 Violet 4 Detached 1,170 £525,000 Available
23 Violet 4 Detached 1,170 £525,000 Available
24 Violet 4 Detached 1,170 £525,000 Available
25 Honeysuckle 3 Detached 1,006 Sold
26 Honeysuckle 3 Detached 1,006 £440,000 Available
27 Forget me now 3 Link Detached 959 £400,000 Available
28 Forget me now 3 Link Detached 959 £400,000 Available
29 Violet 4 Detached 1,170 £525,000 Available
30 Harebell 4 Detached 1,466 Sold
35 Cornflower 2 Bungalow 811 Sold
36 Poppy 3 Bungalow 886 £460,000 Available
37 Violet 4 Detached 1,170 £525,000 Available
38 Violet 4 Detached 1,170 £525,000 Available
39 Violet 4 Detached 1,170 £525,000 Available
40 Violet 4 Detached 1,170 £525,000 Available
41 Poppy 3 Bungalow 886 £460,000 Available

Handover of these homes are expected in Autumn 2025. 

Contact Paul Mason Associates Team for more information on 01621 742340 or email info@paulmasonassociates.co.uk

Find your home

Please use the form to search for your new home based on location, number of bedrooms and type.

Register with us

Please use the form to register with Myriad Homes for our latest updates.

Please confirm your preferred contact method. Please note, at least one contact preference must be selected to register your interest in a property

Your privacy is important to us, so we’ll always keep your details secure. By registering your details, we will contact you with relevant information on our current and future developments. You can change how you’re contacted at any time by contacting us. Read our privacy policy for more information on how we store and use your data.